





Низковольтное оборудование
Инструмент ручной, средства для монтажа
Светотехника
Щиты и шкафы, шинопровод
Системы для прокладки кабеля
Микросхемы
Отопительные приборы, вентиляция, технологические и инженерные системы
Инструмент, измерительные приборы и средства защиты
Садовый инструмент и инвентарь




| Код | 36163K |
| Бренд | DKC |
| Гарантийный срок | 3 года |
| Страна | Российская Федерация |
| Серия | S5 Combitech |
Особые артикулы
На данный момент нет отзывов от покупателей
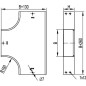
При построении сложных кабельных трасс необходимы специальные аксессуары – повороты и ответвители. С их помощью можно конструировать и собирать кабельные трассы сложного конструктива. Т-образный тройник (ответвитель) DPT позволяет создавать ответвления трассы в горизонтальной и вертикальной плоскости. В состав комплектного аксессуара входят соединительные пластины и крепежные элементы, необходимые для надежного и качественного монтажа. Исполнение аксессуара – "сталь, оцинкованная по методу Сендзимира", ширина – 200 мм, высота – 100 мм, внутренний радиус – 100 мм.


check_circle
check_circle





































